情報更新日: 2026年3月18日
お問い合わせ番号: 03821
所在地: 兵庫県姫路市飾磨区堀川町
交通: 山陽電鉄本線 亀山(兵庫)駅 徒歩16分
築年月: 2026年2月(新築)
専有・建物: 約31.23坪
物件ポイント
※即日案内■資金計画はFPが無理のないお支払い方
■ローンはお任せ下さいませ!借入のある方もお気軽に!
■準備金0円スタート!
■高浜小学校・飾磨東中学校エリア!車スペース2台可!
■山陽本線「亀山」駅徒歩約16分!
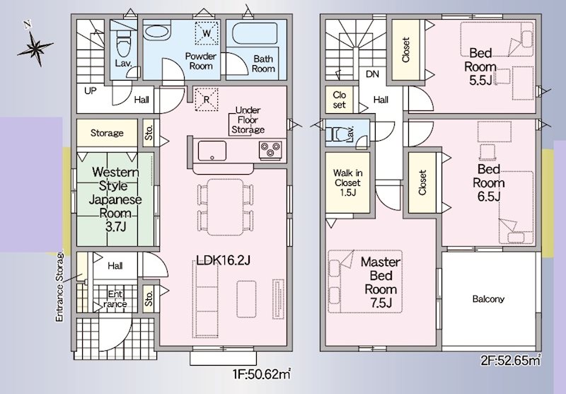
■LDK16.2帖&和室3.7帖で19帖以上!※パウダールーム3帖!
■主寝室7.5帖+ウォークインクローゼット+インナーバルコニー!
■耐震3の家族を守る安心感!地震の揺れを吸収する制振装置QUIE搭載!
■フラット35S対応可能!■住宅瑕疵10年保証!
担当:廣田 美智子
※即日案内■資金計画はFPが無理のないお支払い方
◇分譲住宅専門会社です。いつでもご相談をお待ち申し上げます。
◇理想のお家へのご希望のカスタマイズも住宅ローンに含めます。
■ローンはお任せ下さいませ!借入のある方もお気軽に!
■準備金0円スタート!
■高浜小学校・飾磨東中学校エリア!車スペース2台可!
■山陽本線「亀山」駅徒歩約16分!
■LDK16.2帖&和室3.7帖で19帖以上!※パウダールーム3帖!
■主寝室7.5帖+ウォークインクローゼット+インナーバルコニー!
■耐震3の家族を守る安心感!地震の揺れを吸収する制振装置QUIE搭載!
■フラット35S対応可能!■住宅瑕疵10年保証!
| 特徴等 | 瑕疵保険(国交省指定)保証付 バリアフリー |
||
|---|---|---|---|
| 設備等 | 24時間換気システム ウォークインクローゼット 床下収納 全居室収納 システムキッチン IHクッキングヒーター 浄水器 温水洗浄便座 トイレ2ヶ所 追い焚き風呂 オートバス 浴室乾燥 風呂一坪以上 フローリング オール電化 複層ガラス 電気給湯 TVインターホン 水道:公営 下水:公共下水 外壁:サイディング カードキー |
||
| 通学区(小学校) | 姫路市立高浜小学校 1251m | 通学区(中学校) | 姫路市立飾磨東中学校 1389m |
| 通学区(小学校) | 姫路市立高浜小学校 1251m | ||
| 通学区(中学校) | 姫路市立飾磨東中学校 1389m | ||
| 近隣施設 | スーパー:ボンマルシェ南条店 501m スーパー:マックスバリュエクスプレス北条店 1651m コンビ二:ローソン 姫路南条店 705m コンビ二:セブンイレブン 姫路南条店 748m ドラッグストア:ゴダイドラッグ 南条前田店 579m |
||
| 物件名 | 姫路市飾磨区堀川町第1 全3邸 2号棟 | ||
|---|---|---|---|
| 物件所在地 | 兵庫県姫路市飾磨区堀川町 | ||
| 交通機関 | 山陽電鉄本線 亀山(兵庫)駅 徒歩16分 | ||
| 敷地の権利形態 | 所有権 | ||
| 土地面積 | 180.91㎡(公簿) | 造成年月日 | - |
| 私道負担面積 | 無し | ||
| 接道状況 | 南4m公道 | 整形地/不整形地 | |
| 地目 | 宅地 現況地目:宅地 | 地勢 | 平坦 |
| 国土法による許可又は事前届出 | 不要 | セットバック | |
| 建ぺい率 | 60% | 容積率 | 200% |
| 建物構造 | 木造 | 築年月 | 2026年2月(新築) |
| 面積(専有・建物) | 103.27㎡ | ||
| 窓の向き | 南 | バルコニー | |
| 建物階数 | 地上2階建 | 所在階 | |
| 建築確認番号 | 第R07SHC123356号 | 開発許可番号 | |
| 都市計画 | 市街化区域 | 用途地域 | 第一種住居地域 |
| 現況 | 新築 | 引渡時期 | 即時 |
| 備考 | イエナビジャパン \\仲介手数料キャンペーン// 2026年3月1日~2026年5月31日 期間中ご成約頂いたお客様に イエナビジャパンからのご提案です! 期間中、仲介手数料・融資斡旋手数料0円! オプション工事などにお役立てくださいませ! \キャッシュバック&家電に変更可能です/ \年中無休・年末年始・お盆・GWも営業しております/ ◇即日案内可能です!ご相談はいつでもお申し付けくださいませ◇ 〇新型コロナウイルス・インフルエンザ対策実施〇 ・スタッフのマスクの着用や、手洗いやうがいを日々徹底! |
||
| 物件名 | 姫路市飾磨区堀川町第1 全3邸 2号棟 | ||
|---|---|---|---|
| 物件所在地 | 兵庫県姫路市飾磨区堀川町 | ||
| 交通機関 | 山陽電鉄本線 亀山(兵庫)駅 徒歩16分 | ||
| 敷地の権利形態 | 所有権 | ||
| 土地面積 | 180.91㎡(公簿) | ||
| 造成年月日 | - | ||
| 私道負担面積 | 無し | ||
| 接道状況 | 南4m公道 | ||
| 整形地/不整形地 | |||
| 地目 | 宅地 現況地目:宅地 | ||
| 地勢 | 平坦 | ||
| 国土法による許可又は事前届出 | 不要 | ||
| セットバック | |||
| 建ぺい率 | 60% | ||
| 容積率 | 200% | ||
| 建物構造 | 木造 | ||
| 築年月 | 2026年2月(新築) | ||
| 面積(専有・建物) | 103.27㎡ | ||
| 窓の向き | 南 | ||
| バルコニー | |||
| 建物階数 | 地上2階建 | ||
| 所在階 | |||
| 建築確認番号 | 第R07SHC123356号 | ||
| 開発許可番号 | |||
| 都市計画 | 市街化区域 | ||
| 用途地域 | 第一種住居地域 | ||
| 現況 | 新築 | ||
| 引渡時期 | 即時 | ||
| 備考 | イエナビジャパン \\仲介手数料キャンペーン// 2026年3月1日~2026年5月31日 期間中ご成約頂いたお客様に イエナビジャパンからのご提案です! 期間中、仲介手数料・融資斡旋手数料0円! オプション工事などにお役立てくださいませ! \キャッシュバック&家電に変更可能です/ \年中無休・年末年始・お盆・GWも営業しております/ ◇即日案内可能です!ご相談はいつでもお申し付けくださいませ◇ 〇新型コロナウイルス・インフルエンザ対策実施〇 ・スタッフのマスクの着用や、手洗いやうがいを日々徹底! |
||
| 取引態様 | 一般媒介 | 自社管理番号 | 03821 |
|---|---|---|---|
| 情報更新日 | 2026年3月18日 | 次回更新予定日 | 2026年4月1日 |
| 不動産会社コード | 2109807 | 物件管理コード | 2136552527090000003814 |
| 取引態様 | 一般媒介 |
|---|---|
| 自社管理番号 | 03821 |
| 情報更新日 | 2026年3月18日 |
| 次回更新予定日 | 2026年4月1日 |
| 不動産会社コード | 2109807 |
| 物件管理コード | 2136552527090000003814 |
ご相談・資料請求・物件の現地ご案内、その他お気軽にお問合せ下さい。
◇◇イエナビジャパン◇◇何から始めようか?とお考えの方は是非一度、お話を伺わせて下さい!資金の事・期日の事など、どうすればよいかをライフプランを共に考えながら最善のカタチでお家のご準備を提案致します。頭金がなくても、いち早くスタート致しましょう!「お家が一番素敵な場所であります様に!」自分たちらしく・心地よく!ずっとお付き合いできる距離感のイエナビジャパンにこれからの事をお申し付け下さい!◇◇○○チャイルドルーム完備○○
お問い合わせ番号: 03821
兵庫県姫路市庄田35-1 兵庫県知事(2)第451522号